Вхід на сайт

Ел. пошта:
Пароль:

Реєстрація на сайті

Призвіще: Область:
Ім'я: Населений пункт:
    По батькові: Номер телефону:
    Ел. пошта: Компанія:
      Пароль: Посада:
      Повторіть пароль: Рік початку роботи:
      Фото:
      З правилами розміщення об'єктів погоджуюсь

      Забули пароль?

      Вкажіть ел. пошту — ми надішлемо Вам новий пароль для входу
      Ел. пошта:

      Проблема на сайті

      Закрити
      Ваш e-mail:
      (необов'язково)
      Розкажіть нам, що сталось


      пр. Університетський — Здається торгівельний майданчик

      (г. Кривой Рог, Долгинцевский район)

      500 грн. за кв.м.

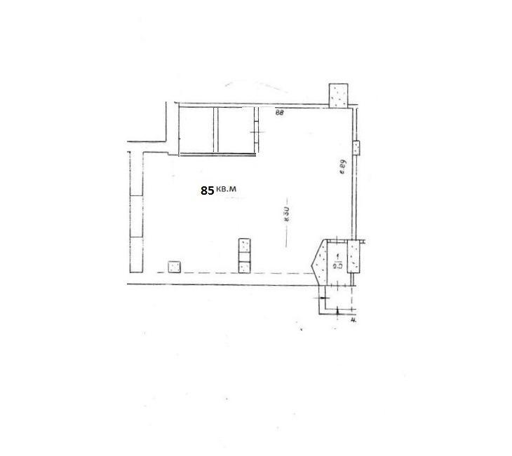
      Загальна площа: 85 кв.м

      Поверх: 1

      К-ть поверхів: 9

      Оренда торговельного приміщення пр. Університетський
      "червона лінія"

      Технічні характеристики:
      -загальна площа 85кв.м
      -магазин після капітального ремонту

      Планування об’єкту:
      - вільне планування

      Комунікації:
      - електроенергія 10 кВт,
      - центральне водопостачання та каналізація,
      - центральне опалення відключено

      Магазин розташований на головній вулиці міста, біля кільця автовокзалу.
      Гарна локація для Вашого бізнесу.

      Оренда 500грн/кв.м. + комун.платежі.

      За будь-якими питаннями за цією або схожими пропозиціями звертайтесь за номером телефону 067 696 16 51.

      З повагою, команда Credo!

      Надіслати скаргу

      Закрити
      Поскаржитися на об'єкт «пр. Університетський (г. Кривой Рог, Долгинцевский район)»
      Ваш коментар:(Необов'язково)
      Ваша скарга буде надіслана ріелтору, що розмістив об'єкт, а також адміністрації сайту АФНУ.
      Ваше ім'я:
      (Обов'язково)
      Ваш e-mail для відповіді:
      (Обов'язково)

      Вам также могут подойти

      пр. Університетський (г. Кривой Рог, Саксаганский район) - Здається торгівельний майданчик, 350 грн. за кв.м. - АФНУ

      Оновлено: 13 серпня

      Розміщено: 29 березня 2024

      Здається торгівельний майданчик

      площа 260, поверх 1/9

      г. Кривой Рог, пр. Університетський

      350 грн. за кв.м.

      Літвинова Ірина Вікторівна

      Оренда торгового приміщення пр. Університетський
      - Довгинцівський район

      Технічні характеристики:
      - перший поверх 9-ти поверхового житлового будинку
      - "червона лінія"
      - в приміщенні ведуться ремонтні роботи

      Планування об’єкту:
      - загальна…

      Детальніше

      ул. Янова (г. Кривой Рог, Центрально-Городской район) - Здається торгівельний майданчик, 350 грн. за кв.м. - АФНУ

      Оновлено: 12 вересня

      Розміщено: 6 травня

      Здається торгівельний майданчик

      площа 207, поверх 1/4

      г. Кривой Рог, ул. Янова

      350 грн. за кв.м.

      Літвинова Ірина Вікторівна

      Оренда магазину в історично-діловому центрі міста
      - Центрально Міський район
      - Вул. Комерційна, 3

      Про об’єкт:
      - 1 поверх 4 -х поверхового житлового будинку
      - Окремий вхід
      - Перед приміщенням…

      Детальніше

      пр. Університетський (г. Кривой Рог, Саксаганский район) - Здається торгівельний майданчик, 380 грн. за кв.м. - АФНУ

      Оновлено: 10 вересня

      Розміщено: 8 травня

      Здається торгівельний майданчик

      площа 106, поверх 1/4

      г. Кривой Рог, пр. Університетський

      380 грн. за кв.м.

      Літвинова Ірина Вікторівна

      Оренда магазину в центрі міста по пр. Університетський, (97 квартал).

      Технічні характеристики:
      - загальна площа – 106,8 кв.м.
      - торгівельний зал площею 60,8 кв.м
      - вітражні вікна, красивий фасад
      -…

      Детальніше

      Коментарі