Вхід на сайт

Ел. пошта:
Пароль:

Реєстрація на сайті

Призвіще: Область:
Ім'я: Населений пункт:
    По батькові: Номер телефону:
    Ел. пошта: Компанія:
      Пароль: Посада:
      Повторіть пароль: Рік початку роботи:
      Фото:
      З правилами розміщення об'єктів погоджуюсь

      Забули пароль?

      Вкажіть ел. пошту — ми надішлемо Вам новий пароль для входу
      Ел. пошта:

      Проблема на сайті

      Закрити
      Ваш e-mail:
      (необов'язково)
      Розкажіть нам, що сталось


      ул. Харитонова — Продається квартира

      (г. Кривой Рог, Центрально-Городской район)

      25000 $

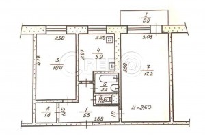
      Загальна площа: 44 кв.м

      Жила площа: 27 кв.м

      Площа кухні: 6 кв.м

      Кімнат: 2

      Поверх: 4

      К-ть поверхів: 5

      Продаж 2-х кімнатної квартири, Центрально-Міський район, вул П.Калнишевського (Харитонова).

      Про об’єкт:

      - Квартира розташована на 4/5 поверхового будинку.
      - Загальна площа 44.8кв.м.,
      - житлова 27.6кв.м., всі кімнати окремі,
      - кухня 6кв.м.,
      - санвузол суміщений.

      Особливості квартири:

      - Світла, тепла квартира з ремонтом, частково мебльована.
      - Вікна м/пл., нові міжкімнатні двері та вхідні, два кондиціонери, труби м/пл., встановлені лічильники, бойлер.

      Об'єкти поруч:
      - Зручне місце розташування
      - Великий житловий масив
      - Розвинена інфраструктура
      - Поряд магазини, аптеки, зупинка, та інше.

      Ціна 25 000$ торг

      За будь-якими питаннями за цією або схожими пропозиціями звертайтесь за номером телефону, де вам відповість наш ріелтор 098 985 09 08.

      З повагою, команда АН Credo

      Надіслати скаргу

      Закрити
      Поскаржитися на об'єкт «ул. Харитонова (г. Кривой Рог, Центрально-Городской район)»
      Ваш коментар:(Необов'язково)
      Ваша скарга буде надіслана ріелтору, що розмістив об'єкт, а також адміністрації сайту АФНУ.
      Ваше ім'я:
      (Обов'язково)
      Ваш e-mail для відповіді:
      (Обов'язково)

      Вам также могут подойти

      ул. Харитонова (г. Кривой Рог, Центрально-Городской район) - Продається квартира, 26000 $ - АФНУ

      Оновлено: 29 вересня

      Розміщено: 12 травня

      Продається квартира

      3 кімн., площа 64/42/7, поверх 4/5

      г. Кривой Рог, ул. Харитонова

      26000 $

      Літвинова Ірина Вікторівна

      Увага! Вигідні умови для продажу по сертифікату.
      Пропонуємо 3кімнатну квартиру ,"сталінка",
      Центрально-Міський район, по вулиці П.Калнишевського,7 (Харитонова).
      Пропозиція для тих хто шукає житло у центрі, не типового
      планування, поряд із…

      Детальніше

      пр. Гагаріна (г. Кривой Рог, Саксаганский район) - Продається квартира, 23000 $ - АФНУ

      Оновлено: 3 вересня

      Розміщено: 14 березня 2024

      Продається квартира

      3 кімн., площа 73/48/8, поверх 4/4

      г. Кривой Рог, пр. Гагаріна

      23000 $

      Літвинова Ірина Вікторівна

      Продаж 3-кімнатної квартири, 97 Квартал, пр. Університетський (раніше пр. Гагаріна)

      Пропонуємо до Вашої уваги велику квартиру "сталінку" 4/4 поверхового будинку, розташованого в тихому дворі, з виходом на проспект.

      Про об'єкт:…

      Детальніше

      ул. Харитонова (г. Кривой Рог, Центрально-Городской район) - Продається квартира, 26000 $ - АФНУ

      Оновлено: 29 вересня

      Розміщено: 12 травня

      Продається квартира

      3 кімн., площа 64/42/7, поверх 4/5

      г. Кривой Рог, ул. Харитонова

      26000 $

      Літвинова Ірина Вікторівна

      Увага! Вигідні умови для продажу по сертифікату.
      Пропонуємо 3кімнатну квартиру ,"сталінка",
      Центрально-Міський район, по вулиці П.Калнишевського,7 (Харитонова).
      Пропозиція для тих хто шукає житло у центрі, не типового
      планування, поряд із…

      Детальніше

      Коментарі