Вхід на сайт

Ел. пошта:
Пароль:

Реєстрація на сайті

Призвіще: Область:
Ім'я: Населений пункт:
    По батькові: Номер телефону:
    Ел. пошта: Компанія:
      Пароль: Посада:
      Повторіть пароль: Рік початку роботи:
      Фото:
      З правилами розміщення об'єктів погоджуюсь

      Забули пароль?

      Вкажіть ел. пошту — ми надішлемо Вам новий пароль для входу
      Ел. пошта:

      Проблема на сайті

      Закрити
      Ваш e-mail:
      (необов'язково)
      Розкажіть нам, що сталось


      без комісії Грушевського, 57 — Продається офіс

      (г. Хмельницкий)

      135000 $

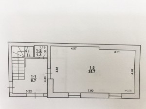
      Загальна площа: 96.6 кв.м

      Кімнат: 2

      Поверх: 1

      К-ть поверхів: 2

      Продам комерційне приміщення. Центр. Грушевського 57.
      Площа: 96,6 кв.м.
      Вартість: 135000$ + витрати по переоформленню.

      Самісінький центр. Асфальтована дорога, свій паркінг в центрі, зручне місцерозташування.
      Вся інфраструктура під рукою – поштові відділення, банки, транспортна розв’язка, кафе, ресторани, торгові центри, офісні центри, держструктури, … .
      Загальна площа приміщення 96.6 м.кв. складається з двох поверхів. Сучасний і якісний ремонт (як на фото). Металопластикові якісні вікна, металопластикові якісні двері, перекриття залізобетон, армопояс між поверхами, дах - металошифер, крокви дерев'яні, утеплений.
      Вода, каналізація, світло, газ є (обрізали, при потребі можна підключити). Якісна електропроводка. Опалення кондиціонерами, гаряча вода бойлер (можна домовитися відкупити у орендарів).
      Приміщення з орендарями! Як варіант покупки з орендарями – пасивний дохід!
      Присутній адекватний торг.
      Показ за попередньою домовленістю.

      Надіслати скаргу

      Закрити
      Поскаржитися на об'єкт «Грушевського, 57 (г. Хмельницкий)»
      Ваш коментар:(Необов'язково)
      Ваша скарга буде надіслана ріелтору, що розмістив об'єкт, а також адміністрації сайту АФНУ.
      Ваше ім'я:
      (Обов'язково)
      Ваш e-mail для відповіді:
      (Обов'язково)

      Вам также могут подойти

      Грушевського (г. Хмельницкий) - Продається офіс, 155000 $ - АФНУ

      Оновлено: 8 квітня

      Розміщено: 1 серпня 2025

      Продається офіс

      3 кімн., площа 132.1, поверх 1/3

      г. Хмельницкий, Грушевського

      155000 $ без комісії

      Осташевський Олексій Іванович

      Спеціаліст з нерухомості (ЦН "Золотий ключ")

      Продаж комерційного приміщення в центрі Хмельницького!!!
      Загальна площа: 132,1 кв.м.
      Вартість: 155000$ + витрати на переоформлення.

      Фасад,прохідне місце.
      Хороша транспортна та пішохідна доступність.
      Приміщення триповерхове, розташоване на приватизованій земельній ділянці…

      Детальніше

      Грушевського, 51 (г. Хмельницкий, Центр) - Продається офіс, 125000 $ - АФНУ

      Оновлено: 8 квітня

      Розміщено: 24 лютого

      Продається офіс

      1 кімн., площа 64.5, поверх 2/4

      г. Хмельницкий, Грушевського, 51

      125000 $ без комісії

      Осташевський Олексій Іванович

      Спеціаліст з нерухомості (ЦН "Золотий ключ")

      Продам просторе та світле приміщення в центрі по вул.Грушевського 51, БЦ"Грушевський".
      Поверх: 2/4
      Площа: 64,5 м.кв.
      Вартість: 125000$ + витрати по переоформленню

      Вигідна локація - самісінький центр міста, працює ліфт.…

      Детальніше

      Грушевського (г. Хмельницкий) - Продається офіс, 155000 $ - АФНУ

      Оновлено: 8 квітня

      Розміщено: 1 серпня 2025

      Продається офіс

      3 кімн., площа 132.1, поверх 1/3

      г. Хмельницкий, Грушевського

      155000 $ без комісії

      Осташевський Олексій Іванович

      Спеціаліст з нерухомості (ЦН "Золотий ключ")

      Продаж комерційного приміщення в центрі Хмельницького!!!
      Загальна площа: 132,1 кв.м.
      Вартість: 155000$ + витрати на переоформлення.

      Фасад,прохідне місце.
      Хороша транспортна та пішохідна доступність.
      Приміщення триповерхове, розташоване на приватизованій земельній ділянці…

      Детальніше

      Коментарі