Вхід на сайт

Ел. пошта:
Пароль:

Реєстрація на сайті

Призвіще: Область:
Ім'я: Населений пункт:
    По батькові: Номер телефону:
    Ел. пошта: Компанія:
      Пароль: Посада:
      Повторіть пароль: Рік початку роботи:
      Фото:
      З правилами розміщення об'єктів погоджуюсь

      Забули пароль?

      Вкажіть ел. пошту — ми надішлемо Вам новий пароль для входу
      Ел. пошта:

      Проблема на сайті

      Закрити
      Ваш e-mail:
      (необов'язково)
      Розкажіть нам, що сталось


      Небесної Сотні — Продається заклад громадського харчування

      (г. Полтава, Ленинский район)

      95000 $

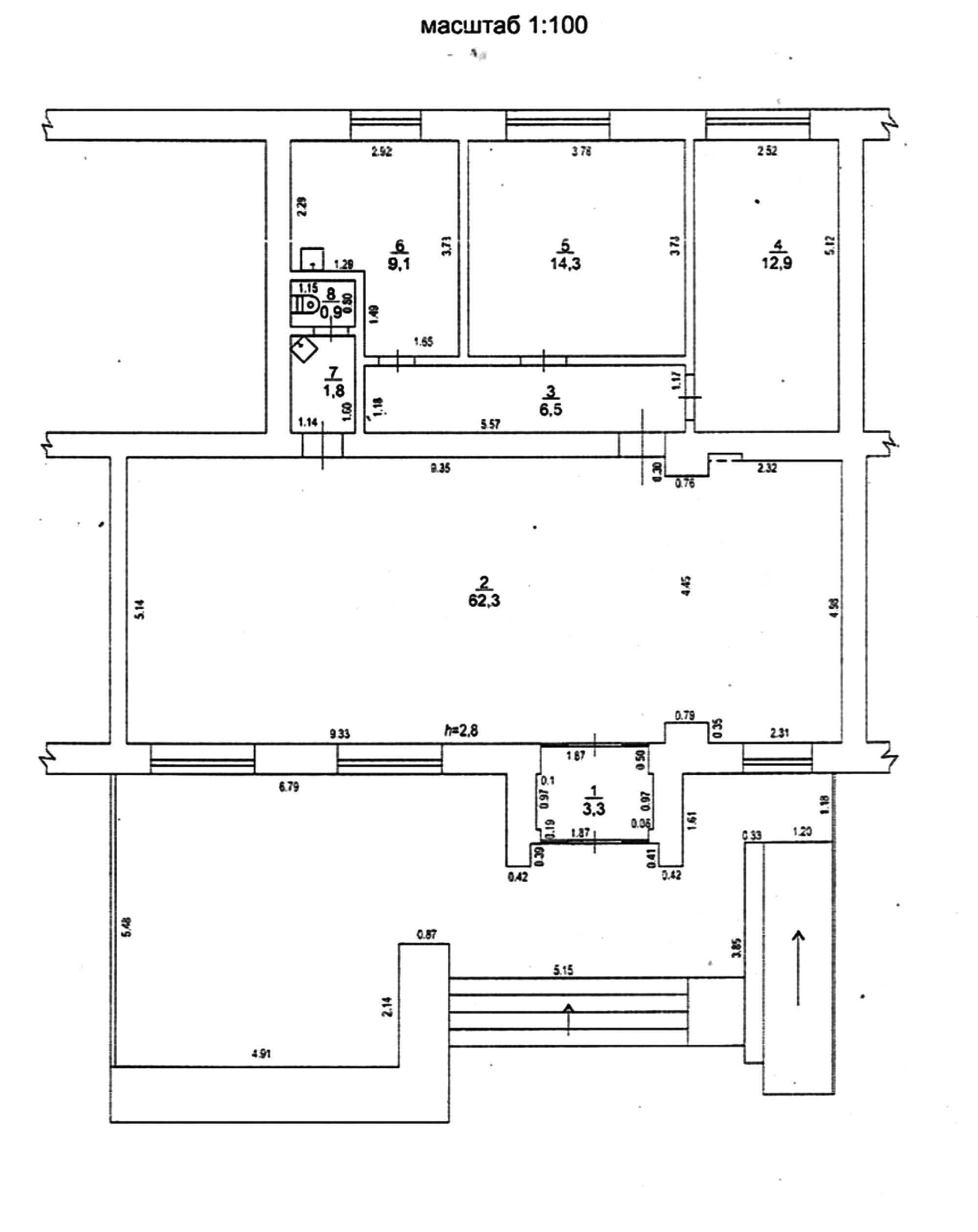
      Загальна площа: 111 кв.м

      К-ть поверхів: 5

      Продається сімейне кафе на Подолі!
      Адреса: м. Полтава, вул. Небесної Сотні (зуп. "Оптика", район маг. АТБ)
      Загальна площа: 111,1 м², земельна ділянка 146 м² (літній майданчик+ пандус)
      Формат: загальний зал+ 2 кабінети + побутове приміщення+ коридор + санвузол + літній майданчик
      Характеристики приміщення:
      • 1-й поверх
      • окремий вхід з фасаду будинку
      • додатково: літній майданчик 26 м²
      • пандус, благоустрій вхідної групи
      • зручна парковка для авто
      Планування:
      • загальний зал 62,3 м²
      • кабінет – 12,9 м²
      • кабінет – 14,3 м²
      • побутове приміщення 9,1 м²
      Комунікації:
      • централізоване опалення (індивідуальний тепловий лічильник)
      • холодне водопостачання та водовідведення
      • електроенергія
      ✅ Ідеально під сімейне кафе, представництво компанії, навчальний центр чи салон послуг.

      Надіслати скаргу

      Закрити
      Поскаржитися на об'єкт «Небесної Сотні (г. Полтава, Ленинский район)»
      Ваш коментар:(Необов'язково)
      Ваша скарга буде надіслана ріелтору, що розмістив об'єкт, а також адміністрації сайту АФНУ.
      Ваше ім'я:
      (Обов'язково)
      Ваш e-mail для відповіді:
      (Обов'язково)

      Вам также могут подойти

      ул. Гагарина, 1 (г. Полтава, Октябрьский район) - Продається заклад громадського харчування, 100000 $ - АФНУ

      Оновлено: 24 вересня

      Розміщено: 24 липня 2019

      Продається заклад громадського харчування

      г. Полтава, ул. Гагарина, 1

      100000 $ без комісії

      Остапченко Александр Степанович

      соучредитель (Агентство недвижимости "Альянс риэлти" Полтава)

      Продам помещение таверны "Ривенделл" в Центре по ул. Гагарина, 1, площадью 98,7 м.кв на Красной Линии.

      Характеристики помещения:
      - два зала - 37,6 и 18,6 м.кв;
      - общая площадь- 98,7…

      Детальніше

      Коментарі