Вхід на сайт

Ел. пошта:
Пароль:

Реєстрація на сайті

Призвіще: Область:
Ім'я: Населений пункт:
    По батькові: Номер телефону:
    Ел. пошта: Компанія:
      Пароль: Посада:
      Повторіть пароль: Рік початку роботи:
      Фото:
      З правилами розміщення об'єктів погоджуюсь

      Забули пароль?

      Вкажіть ел. пошту — ми надішлемо Вам новий пароль для входу
      Ел. пошта:

      Проблема на сайті

      Закрити
      Ваш e-mail:
      (необов'язково)
      Розкажіть нам, що сталось


      ул. Цементников — Продається будинок

      (г. Кривой Рог, Долгинцевский район)

      125000 $

      Загальна площа: 390 кв.м

      Площа ділянки: 10 сот

      Кімнат: 5

      К-ть поверхів: 2

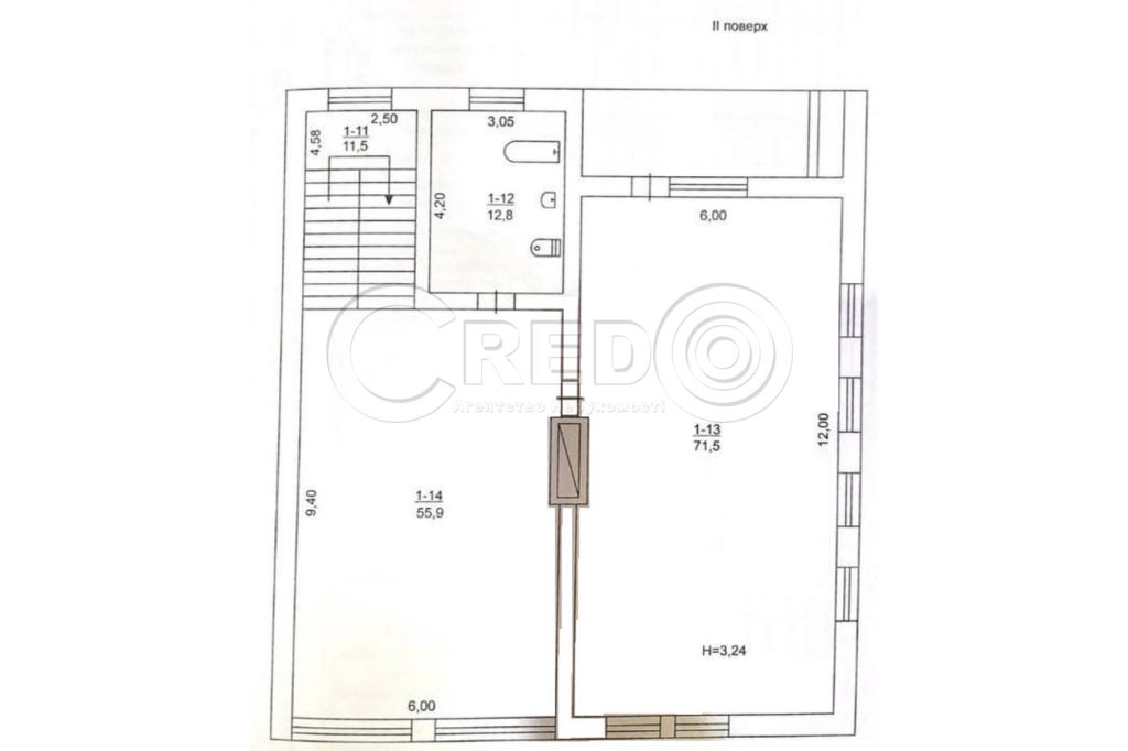
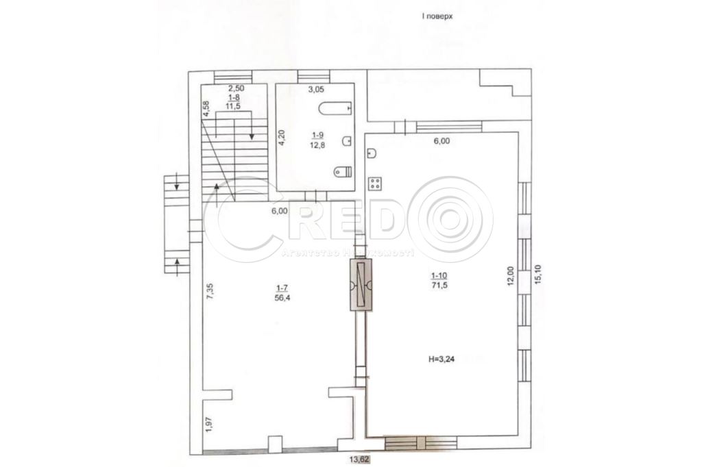
      Продаж 2-х пов. будинок, 275 кв.м. вул. Цементників

      Пропонуємо будинок, побудований з екологічно-чистих матеріалів. Рік побудови - 2011р.

      Про домовлодіння:
      - Загальна площа будинку 390 кв.м.
      - Житлова площа - 275 кв.м.
      - Земельна ділянка з ландшафтом 10 соток
      - Будинок готовий на 70%, без оздоблювальних робіт

      Планування будинку:
      - Вільне планування
      - Виділені зони для відпочинку - басейн, лазня, сауна.
      - Високий цоколь, великий підвал.

      Комунікації:
      - Центральне водопостачання та каналізація
      - Наявні умови для підведення електропостачання та газу.

      Матеріали побудови:
      - При будівлі будинку використовувалися якісні екологічно чисті матеріали:
      - Основа - кримський ракушняк, обкладений клінкерною цеглою, утеплений мінеральною ватою "Техноніколь".
      - Дах - металочерепиця "IKO", вікна м/пл. "Winter"

      Прибудинкова територія:
      - Огороджено кам'яним парканом
      - Автоматичні ворота
      - Альтанка для пікніка

      Сад:
      - Різновид фруктових дерев

      За будь-якими питаннями за цією або схожими пропозиціями звертайтесь за номером телефону, де вам відповість наш ріелтор Надія 098 985 09 08

      З повагою, команда Credo!

      Надіслати скаргу

      Закрити
      Поскаржитися на об'єкт «ул. Цементников (г. Кривой Рог, Долгинцевский район)»
      Ваш коментар:(Необов'язково)
      Ваша скарга буде надіслана ріелтору, що розмістив об'єкт, а також адміністрації сайту АФНУ.
      Ваше ім'я:
      (Обов'язково)
      Ваш e-mail для відповіді:
      (Обов'язково)

      Вам также могут подойти

      ул. Черняховского (г. Кривой Рог, Центрально-Городской район) - Продається будинок, 135000 $ - АФНУ

      Оновлено: 25 листопада 2025

      Розміщено: 29 березня 2023

      Продається будинок

      г. Кривой Рог, ул. Черняховского

      135000 $

      Літвинова Ірина Вікторівна

      Будинок розташований по вул.Черняховського, Центрально міський р-н.
      На території два житлових будинки та будинок для гостей з сауною. Чудовий сад, зона барбекю.

      Про об'єкт:
      - Земельна ділянка 13 соток
      -…

      Детальніше

      ул. Украинская (г. Кривой Рог, Центрально-Городской район) - Продається будинок, 120000 $ - АФНУ

      Оновлено: 1 грудня 2025

      Розміщено: 7 травня 2025

      Продається будинок

      г. Кривой Рог, ул. Украинская

      120000 $

      Літвинова Ірина Вікторівна

      Будинок розтошований по вул. Українська, Центральноміський р-н.
      Баня для гостей, басейн, сад.

      Про об'єкт:
      - Земельна ділянка 7 соток
      - Загальна площа будину 250кв.м.
      - Перший поверх заг.пл. 150кв.м.
      -…

      Детальніше

      Коментарі