Вхід на сайт

Ел. пошта:
Пароль:

Реєстрація на сайті

Призвіще: Область:
Ім'я: Населений пункт:
    По батькові: Номер телефону:
    Ел. пошта: Компанія:
      Пароль: Посада:
      Повторіть пароль: Рік початку роботи:
      Фото:
      З правилами розміщення об'єктів погоджуюсь

      Забули пароль?

      Вкажіть ел. пошту — ми надішлемо Вам новий пароль для входу
      Ел. пошта:

      Проблема на сайті

      Закрити
      Ваш e-mail:
      (необов'язково)
      Розкажіть нам, що сталось


      без комісії Дерегуса, 20 — Продається будинок

      (г. Киев, Соломенский район)

      255000 $

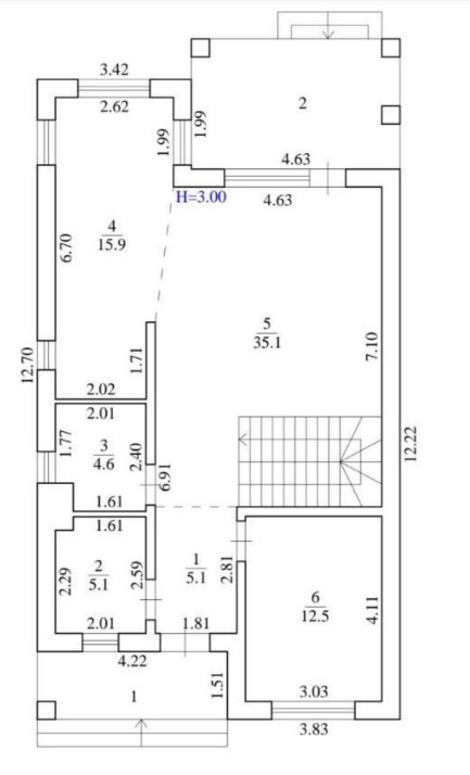
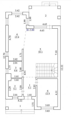
      Загальна площа: 180 кв.м

      Площа ділянки: 8 сот

      Кімнат: 5

      К-ть поверхів: 2

      Пропонується до продажу просторий двоповерховий будинок загальною площею 180 кв.м (корисна площа 172 кв.м, житлова 92 кв.м), розташований на земельній ділянці 8 соток у закритому та охоронюваному котеджному містечку «Щастя».

      Будинок спроектований для комфортного проживання батьківщини з продуманим та зручним плануванням. Стан будинку після будівельників, що дає можливість реалізувати власний дизайн інтер'єру та оздоблення.

      Планування та приміщення:

      4 спальні: одна спальня на першому поверсі, три спальні на іншому поверсі, одна з яких забезпечена гардеробною
      Простора кухня-вітальня
      2 санвузли
      Топочна
      Майстерня
      Гараж
      Тераса площею 18 кв.м

      Земельна ділянка:
      Площа - 8 соток
      Рівна, правильної форми, зручна для облаштування зони відпочинку, саду або ландшафтного дизайну.

      Комунікації:
      Власна свердловина глибиною 40 м
      Септик об'ємом 4 м³
      Електропостачання - 15 кВт

      Про котеджне містечко:
      Котеджне містечко «Щастя» - закрита територія з контролем доступу, що забезпечує безпеку та комфорт мешканців. Тихе та спокійне місце, сучасна забудова, доглянуті вулиці, приємне сусідство. Містечко ідеально підходить для постійного проживання батьківщини, поєднуючи приватність заміського життя з доступністю міської інфраструктури.
      Будинок продається без комісії.

      Надіслати скаргу

      Закрити
      Поскаржитися на об'єкт «Дерегуса, 20 (г. Киев, Соломенский район)»
      Ваш коментар:(Необов'язково)
      Ваша скарга буде надіслана ріелтору, що розмістив об'єкт, а також адміністрації сайту АФНУ.
      Ваше ім'я:
      (Обов'язково)
      Ваш e-mail для відповіді:
      (Обов'язково)

      Коментарі