Вхід на сайт

Ел. пошта:
Пароль:

Реєстрація на сайті

Призвіще: Область:
Ім'я: Населений пункт:
    По батькові: Номер телефону:
    Ел. пошта: Компанія:
      Пароль: Посада:
      Повторіть пароль: Рік початку роботи:
      Фото:
      З правилами розміщення об'єктів погоджуюсь

      Забули пароль?

      Вкажіть ел. пошту — ми надішлемо Вам новий пароль для входу
      Ел. пошта:

      Проблема на сайті

      Закрити
      Ваш e-mail:
      (необов'язково)
      Розкажіть нам, що сталось


      ул. Адмирала Головко — Продається торгівельний майданчик

      (г. Кривой Рог, Терновской район)

      25000 $

      Загальна площа: 50 кв.м

      Поверх: 1

      К-ть поверхів: 9

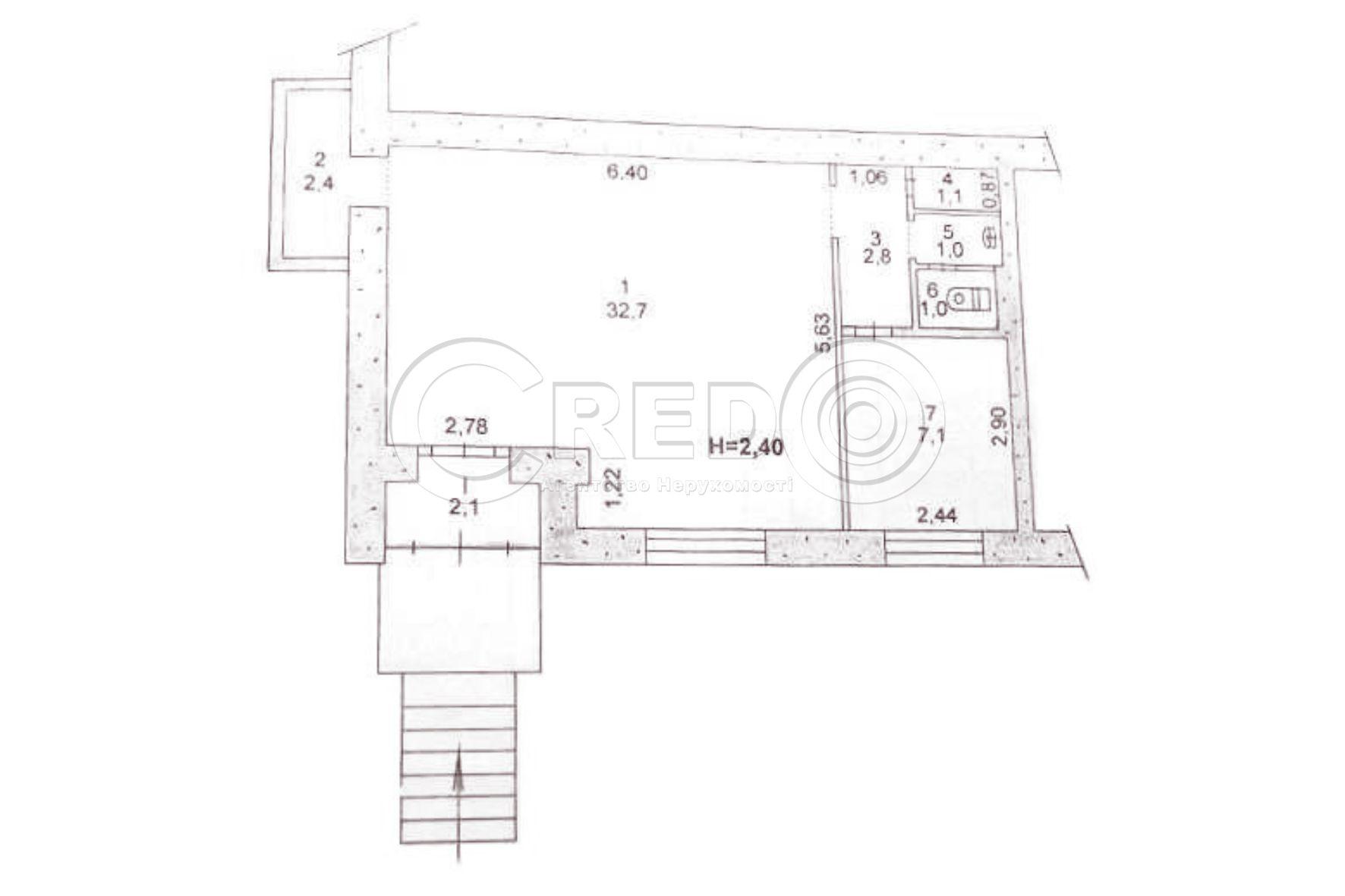
      Пропонуємо до продажу об'єкт нежитлового фонду
      розташований у Тернівському районі, вул.Героїв Маріуполя,58
      (колишня вул.Адмірала Головка). мкрн. "Даманський"
      Раніше використовувалось як магазин, салон краси.

      Про об'єкт:
      - загальна площа 50,2м.кв.
      - торгівельний зал 32,7м.кв.
      - кабінет 7,1 м.кв.
      - підсобні приміщення.
      - вхід окремо, сходовий майданчик.
      - вода, каналізація, опалення центральне.
      - електрика 10 кВт.
      - задовільний стан, не великі витрати на оновлення.

      Локація:
      - зупинка громадського транспору в.Героїв Маріуполя.
      - поряд Криворізька Тернівська Гімназія.
      - Церква Петра і Февронії УПЦ.

      Ціна продажу 25 000 $
      За будь-якими питаннями за цією або схожими пропозиціями звертайтесь за номером телефону 067 982 17 19.

      Надіслати скаргу

      Закрити
      Поскаржитися на об'єкт «ул. Адмирала Головко (г. Кривой Рог, Терновской район)»
      Ваш коментар:(Необов'язково)
      Ваша скарга буде надіслана ріелтору, що розмістив об'єкт, а також адміністрації сайту АФНУ.
      Ваше ім'я:
      (Обов'язково)
      Ваш e-mail для відповіді:
      (Обов'язково)

      Вам также могут подойти

      ул. Лебедева-Кумача (г. Кривой Рог, Центрально-Городской район) - Продається торгівельний майданчик, 28000 $ - АФНУ

      Оновлено: 31 березня

      Розміщено: 25 лютого 2019

      Продається торгівельний майданчик

      площа 53, поверх 1/1

      г. Кривой Рог, ул. Лебедева-Кумача

      28000 $

      Літвинова Ірина Вікторівна

      Пропонуємо продаж нежитлової, окремо розташованої будівлі, вільного призначення в Центрально-міському р-ні, вул. Лебедєва-Кумача (Цетр. Міський ринок)

      Про об'єкт:
      - загальна площа - 53,4 кв.м
      - земельна ділянка - 15 соток…

      Детальніше

      ул. Лисового (г. Кривой Рог, Долгинцевский район) - Продається торгівельний майданчик, 24900 $ - АФНУ

      Оновлено: 24 березня

      Розміщено: 10 березня 2021

      Продається торгівельний майданчик

      площа 46, поверх 1/9

      г. Кривой Рог, ул. Лисового

      24900 $

      Літвинова Ірина Вікторівна

      Пропонуємо продаж магазину вільного призначення, в густонаселеному спальному районі Східний-2, по вул. Лісового.

      Про об'єкт:
      - заг. пл. - 46,4 кв.м
      - приміщення фасадне, в гарному стані,
      - має два…

      Детальніше

      ул. Косиора (г. Кривой Рог, Дзержинский район) - Продається торгівельний майданчик, 25000 $ - АФНУ

      Оновлено: 2 квітня

      Розміщено: 22 листопада 2021

      Продається торгівельний майданчик

      площа 30, поверх 1/5

      г. Кривой Рог, ул. Косиора

      25000 $

      Літвинова Ірина Вікторівна

      Продаж магазину на "Соцмісті"
      - Металургійний район
      - вул. Соборності

      Розташування:
      -район " Соцмісто"
      -розташоване по "червоній лінії"
      -зупинка " Плавальний басейн"

      Техничні характиристики:
      - вбудований в 1 поверх 5-ти…

      Детальніше

      Коментарі