Вхід на сайт

Ел. пошта:
Пароль:

Реєстрація на сайті

Призвіще: Область:
Ім'я: Населений пункт:
    По батькові: Номер телефону:
    Ел. пошта: Компанія:
      Пароль: Посада:
      Повторіть пароль: Рік початку роботи:
      Фото:
      З правилами розміщення об'єктів погоджуюсь

      Забули пароль?

      Вкажіть ел. пошту — ми надішлемо Вам новий пароль для входу
      Ел. пошта:

      Проблема на сайті

      Закрити
      Ваш e-mail:
      (необов'язково)
      Розкажіть нам, що сталось


      дор. Кольцевая — Продається квартира

      (г. Чернигов, Новозаводской район)

      20553 $

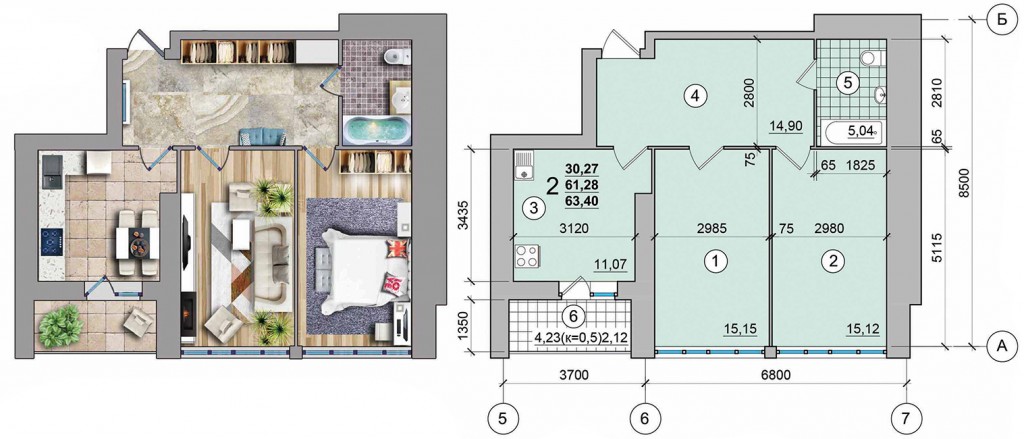
      Загальна площа: 63 кв.м

      Площа кухні: 11 кв.м

      Кімнат: 2

      Поверх: 3

      К-ть поверхів: 11

      Найсучасніший Житловий Комплекс Олександрівський!

      Широкий вибір квартир з сучасним плануванням для ВАС: 1-, 2-, 3-кімнатні квартири.

      Чудова 1-кімн.кв. загальною площею: 63,40м,
      кімнати - 15,15м і 15,12м,
      кухня - 11.07м,
      с/в - 5,04м.

      В квартирі:

      - ПАНОРАМНІ вікна!

      - Встановлення металопластикових вікон та балконних блоків,

      - Встановлення вхідних металевих дверей,

      - Прокладання сантехнічних, електричних мереж, мереж опалення,

      - Лічильники на газ, холодну воду та електроенергію,

      - Встановлення радіаторів з регуляторами,

      - Підготовка підлоги, штукатурка стін (крім приміщень санвузла, ванни та робочої стіни кухні).

      ЗРУЧНЕ РОЗТАШУВАННЯ КОМПЛЕКСУ:

      - Супермаркети "Еко-маркет", "АТБ" (4 хвилини пішки),
      - Парк Березовий Гай (5 хвилин пішки),
      - Загальноосвітня школа №31,
      - Зупинки громадського транспорту (1 хвилина пішки),
      - Центральний парк міста (7 хвилин на авто),
      - ТРЦ "HOLLYWOOD" (2 хвилин на авто),
      - Історичний центр міста (10 хвилин на авто).
      - Міський пляж (10 хвилин на авто),

      Вартість 9200 грн./кв.м! - 583 280грн.

      Індивідуальне кредитування!
      При внесенні 50% від вартості квартири ціна - 9600 грн./кв.м, при 70% ціна - 9400 грн./кв.м.

      Здача будинку в експлуатацію - IV квартал 2019 року.

      Телефонуйте до Відділу Продажу!

      Надіслати скаргу

      Закрити
      Поскаржитися на об'єкт «дор. Кольцевая (г. Чернигов, Новозаводской район)»
      Ваш коментар:(Необов'язково)
      Ваша скарга буде надіслана ріелтору, що розмістив об'єкт, а також адміністрації сайту АФНУ.
      Ваше ім'я:
      (Обов'язково)
      Ваш e-mail для відповіді:
      (Обов'язково)

      Коментарі