Вхід на сайт

Ел. пошта:
Пароль:

Реєстрація на сайті

Призвіще: Область:
Ім'я: Населений пункт:
    По батькові: Номер телефону:
    Ел. пошта: Компанія:
      Пароль: Посада:
      Повторіть пароль: Рік початку роботи:
      Фото:
      З правилами розміщення об'єктів погоджуюсь

      Забули пароль?

      Вкажіть ел. пошту — ми надішлемо Вам новий пароль для входу
      Ел. пошта:

      Проблема на сайті

      Закрити
      Ваш e-mail:
      (необов'язково)
      Розкажіть нам, що сталось


      без комісії ул. Новороссийская, 17 — Здається будинок

      (г. Киев, Днепровский район)

      17000 грн.

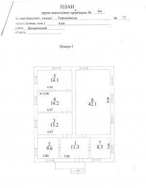
      Загальна площа: 115 кв.м

      Площа ділянки: 0.5 сот

      Кімнат: 5

      К-ть поверхів: 1

      Без комісії! Дніпровський р-н, вул. Опришківська, 17 (Новоросійська).
      Приватний сектор. Відмінна інфраструктура, асфальтований під'їзд. Власне ТП, автономне опалення (електрокотел). У будинку – 25 кВт.
      Загальна площа – 115м2, h – 3m. Хол – 11м2, велика кімната – 42м2, 4 кімнати (10м2, 14м2, 14м2, 15м2), санвузол (8м2).
      Свіжий ремонт, металопластикові вікна, ділянка – 0,5 соток.

      *Будь ласка, пишіть/дзвоніть на будь-який з месенджерів: WhatsApp, Telegram, Viber. Тимчасово зв'язок тільки такий. Дякую!

      Надіслати скаргу

      Закрити
      Поскаржитися на об'єкт «ул. Новороссийская, 17 (г. Киев, Днепровский район)»
      Ваш коментар:(Необов'язково)
      Ваша скарга буде надіслана ріелтору, що розмістив об'єкт, а також адміністрації сайту АФНУ.
      Ваше ім'я:
      (Обов'язково)
      Ваш e-mail для відповіді:
      (Обов'язково)

      Коментарі