Вхід на сайт

Ел. пошта:
Пароль:

Реєстрація на сайті

Призвіще: Область:
Ім'я: Населений пункт:
    По батькові: Номер телефону:
    Ел. пошта: Компанія:
      Пароль: Посада:
      Повторіть пароль: Рік початку роботи:
      Фото:
      З правилами розміщення об'єктів погоджуюсь

      Забули пароль?

      Вкажіть ел. пошту — ми надішлемо Вам новий пароль для входу
      Ел. пошта:

      Проблема на сайті

      Закрити
      Ваш e-mail:
      (необов'язково)
      Розкажіть нам, що сталось


      без комісії ул. Динамовская, 1 — Продається квартира в новобудові

      (г. Харьков, Дзержинский район)

      225522 $

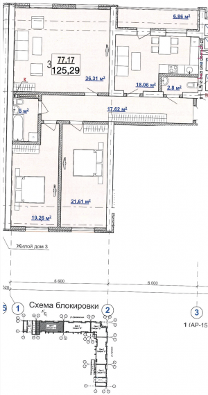
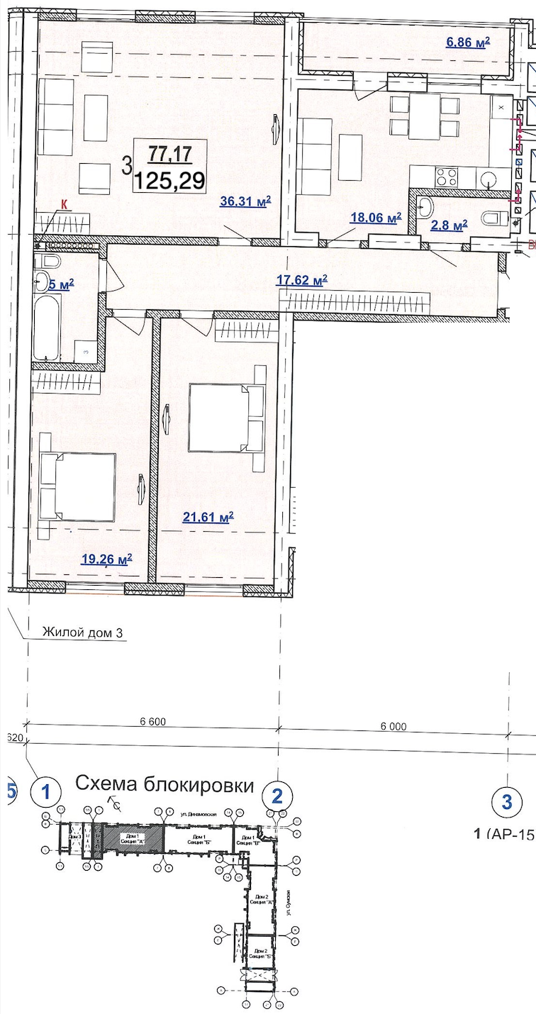
      Загальна площа: 125.29 кв.м

      Жила площа: 74 кв.м

      Площа кухні: 19 кв.м

      Кімнат: 3

      Поверх: 4

      К-ть поверхів: 8

      Коміссія 0%. Продається 3-кімнатна квартира в самому центрі Харкова в ЖК "Дім на Сумскій", за адресою вул., Сумська, 77. В центрі для життя Ви зможете знайти все що завгодно: розважальні заклади та провести вільний час (ресторани, парк ім. Горького, кінотеатр), магазини від продовольчих до бутиків, найближчи садок та школа знаходятся в радіусі 1 км.
      Сам комплекс відносится до "Бізнес" класу, в ньому передбачено: 2-а поверхи підземного паркінгу, відеоспостереження, невелика придомова закрита территорія з дитячим майданчиком. Більшь детально пропонуемо подивится наш відеоогляд данного комплексу.
      -
      Будинок зданий - можна приступати до ремонту.
      Площа квартири:
      Загальна площа - 125 м²;
      Житлова площа - 74 м²;
      Кухня - 19 м².
      -
      СТАН КВАРТИРИ - ПОТРІБНО КАПІТАЛЬНИЙ РЕМОНТ.
      КОМПЛЕКТАЦІЯ КВАРТИР:
      • встановлені перегородки як зазначено на плані;
      • металопластикові вікна (Modern);
      • горизонтальна розводка опалення та радіатори опалення (є можливість поставити лічильник на тепло, регулятори на батареї і контролювати подачу тепла в квартиру індивідуально);
      • вхідні залізні двері;
      • лічильник на електрику;
      • підведені комунікації (холодна, гаряча вода);
      • каналізація;
      • заведено електрику;
      • зроблено зовнішнє утеплення стін (утеплювач мінеральна вата 100 мм).
      • ніши для кондиціонерів та проведені магістралі в квартиру;
      -
      Буду радий Вас чути):
      Пн-Пт - 8: 00-20: 00.
      Сб-Нд - II: 00-20: 00
      Святкові дні - вихідний.

      Надіслати скаргу

      Закрити
      Поскаржитися на об'єкт «ул. Динамовская, 1 (г. Харьков, Дзержинский район)»
      Ваш коментар:(Необов'язково)
      Ваша скарга буде надіслана ріелтору, що розмістив об'єкт, а також адміністрації сайту АФНУ.
      Ваше ім'я:
      (Обов'язково)
      Ваш e-mail для відповіді:
      (Обов'язково)

      Коментарі