Вхід на сайт

Ел. пошта:
Пароль:

Реєстрація на сайті

Призвіще: Область:
Ім'я: Населений пункт:
    По батькові: Номер телефону:
    Ел. пошта: Компанія:
      Пароль: Посада:
      Повторіть пароль: Рік початку роботи:
      Фото:
      З правилами розміщення об'єктів погоджуюсь

      Забули пароль?

      Вкажіть ел. пошту — ми надішлемо Вам новий пароль для входу
      Ел. пошта:

      Проблема на сайті

      Закрити
      Ваш e-mail:
      (необов'язково)
      Розкажіть нам, що сталось


      ул. Клочковская, 117 — Продається квартира

      (г. Харьков, Дзержинский район)

      105000 $

      Загальна площа: 138 кв.м

      Жила площа: 61 кв.м

      Площа кухні: 20 кв.м

      Кімнат: 3

      Поверх: 19

      К-ть поверхів: 20

      Продам 3-кімнатну квартиру з терасою у житловому комплексі бізнес-класу "Павлівський квартал", вул. Клочківська, 117 біля метро Наукова.

      Код об'єкта SF-2-270-152

      Житловий комплекс бізнес-класу розташований у районі, наближеному до центру. Біля будинку зупинки транспорту, через дорогу – супермаркет Восторг. Поруч метро, ​​супермаркети Клас, Рост, АТБ, будівельний супермаркет Будмен, фітнес-клуб YOD, школи, дитсадки.

      У під'їзді просторий хол, домофон, цілодобовий консьєрж-сервіс.
      Закритий двір, відеоспостереження, підземний дворівневий паркінг, наземне паркування, зони відпочинку, дитячі та спортивні майданчики.

      Забудовник "Житлобуд-2"

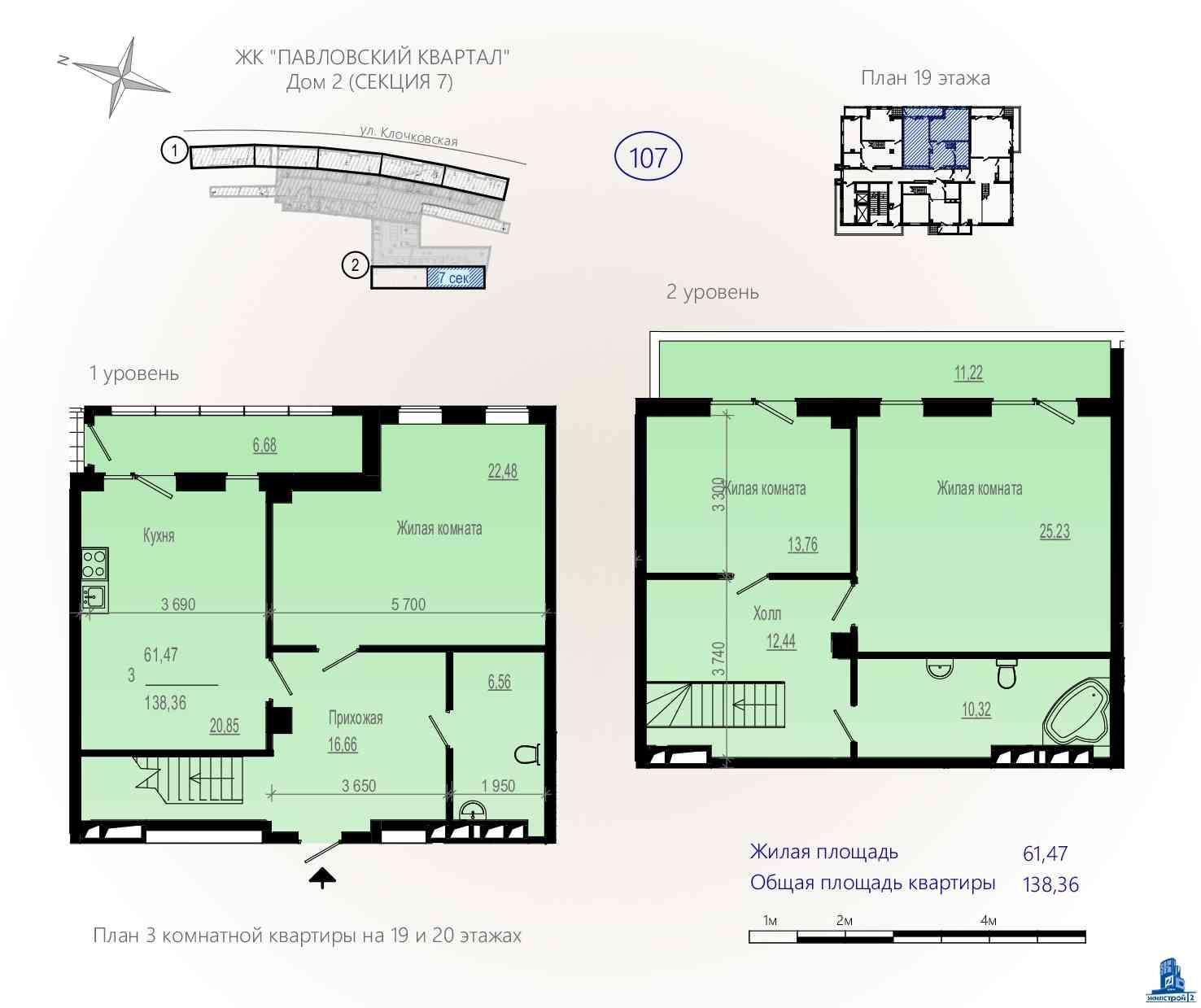
      Будинок 2. Секція 2 (7), стадія будівництва.
      Продаж по переуступці.

      19-й та 20-й поверхи 20-поверхового монолітно-каркасного будинку.
      Стіни: газобетон, мінераловатний утеплювач, штукатурка.

      Загальна площа 138,36 кв.м., житлова площа 61,47 кв.м.
      1-й рівень (19-й поверх): кухня-студія – 20,85 кв.м, спальня 22,48 кв.м, санвузол 6,56 кв.м, передпокій – 16,66 кв.м, лоджія – 6 , 73 кв.м.
      2-й рівень (20-й поверх): дві спальні – 13,76 кв.м та 25,23 кв.м, санвузол 10,32 кв.м, хол – 12,44 кв.м, тераса – 11,22 кв.м.

      Квартира у будiвельному станi.

      Дизайн-проект у подарунок.

      Вартість - $105 + послуги АН

      Надіслати скаргу

      Закрити
      Поскаржитися на об'єкт «ул. Клочковская, 117 (г. Харьков, Дзержинский район)»
      Ваш коментар:(Необов'язково)
      Ваша скарга буде надіслана ріелтору, що розмістив об'єкт, а також адміністрації сайту АФНУ.
      Ваше ім'я:
      (Обов'язково)
      Ваш e-mail для відповіді:
      (Обов'язково)

      Вам также могут подойти

      Клочківська вул., 117 (г. Харьков, Дзержинский район) - Продається квартира в новобудові, 115000 $ - АФНУ

      Оновлено: 11 липня

      Розміщено: 27 березня 2023

      Продається квартира в новобудові

      4 кімн., площа 170/66/30, поверх 16/17

      г. Харьков, Клочківська вул., 117

      115000 $

      Авраменко Елена Александровна

      (Агенція нерухомості AvramenKo) , (Агенція нерухомості AvramenKo)

      Продам 4-кімнатну квартиру у житловому комплексі бізнес-класу "Павлівський квартал", вул. Клочківська, 117 біля метро Наукова.

      Код об'єкта SF-2-235-636

      Житловий комплекс бізнес-класу розташований у районі, наближеному до центру. Біля будинку зупинки…

      Детальніше

      просп. Науки, 45/3 (г. Харьков, Дзержинский район) - Продається квартира, 99000 $ - АФНУ

      Оновлено: 11 липня

      Розміщено: 30 вересня 2023

      Продається квартира

      2 кімн., площа 71/20/24, поверх 21/25

      г. Харьков, просп. Науки, 45/3

      99000 $

      Авраменко Елена Александровна

      (Агенція нерухомості AvramenKo) , (Агенція нерухомості AvramenKo)

      Продам видову 2-кімнатну квартиру в житловому комплексі бізнес-класу "Монте-Плаза", на проспекті Науки 45/3 біля метро "23 серпня".

      Код об'єкта SF-2-742-232

      Будинок розташований у престижному районі Павлове Поле біля метро "23…

      Детальніше

      Цілиноградська, 58а (г. Харьков, Дзержинский район) - Продається квартира, 99000 $ - АФНУ

      Оновлено: 11 липня

      Розміщено: 4 грудня 2023

      Продається квартира

      3 кімн., площа 101/58/13, поверх 15/20

      г. Харьков, Цілиноградська, 58а

      99000 $

      Авраменко Елена Александровна

      (Агенція нерухомості AvramenKo) , (Агенція нерухомості AvramenKo)

      Продам 3-кім. квартиру в ЖК Дует, Цілиноградська, М Олексіївська
      Продам 3-кімнатну квартиру в житловому комплексі "Дует" на вул. Мирослава Мисли (Цілиноградська), 58А. До станції метро "Олексіївська" 5 хвилин пішки.

      Код…

      Детальніше

      Коментарі