Вхід на сайт

Ел. пошта:
Пароль:

Реєстрація на сайті

Призвіще: Область:
Ім'я: Населений пункт:
    По батькові: Номер телефону:
    Ел. пошта: Компанія:
      Пароль: Посада:
      Повторіть пароль: Рік початку роботи:
      Фото:
      З правилами розміщення об'єктів погоджуюсь

      Забули пароль?

      Вкажіть ел. пошту — ми надішлемо Вам новий пароль для входу
      Ел. пошта:

      Проблема на сайті

      Закрити
      Ваш e-mail:
      (необов'язково)
      Розкажіть нам, що сталось


      ул. Куйбышева, 14/16 — Здається торгівельний майданчик

      (г. Полтава, Октябрьский район)

      26000 грн.

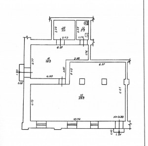
      Загальна площа: 86 кв.м

      Поверх: 1

      К-ть поверхів: 2

      Сдам в аренду торгово-офисное помещение в Центре по улице Черновола, 14/16 площадью 86,3 м.кв на Красной Линии.

      Характеристики помещения:
      - 1 этаж;
      - торговый зал- 59, 2 м.кв;
      - склад- 19,2 м.кв;
      - бытовая комната- 5,4 м.кв;
      - санузел- 2,5 м.кв
      Описание:
      - фасадная часть здания;
      - высота помещения Н= 3,20 м.;
      - коммуникации- централизованные;
      - пожарная и охранная сигнализации;
      - система кондиционирования воздуха;
      - с ремонтом
      Предыдущее применение: Магазин обуви

      Возможное применение: Магазин непродовольственной группы товаров (одежда, обувь, мебель), отделение банка, офис.

      Высокие пешеходные потоки, есть парковка.
      Стоимость аренды:

      - 26 000 грн/месяц (оплата первый+ последний месяц) + коммунальные платежи + одноразовая комиссия АН 50%.

      Надіслати скаргу

      Закрити
      Поскаржитися на об'єкт «ул. Куйбышева, 14/16 (г. Полтава, Октябрьский район)»
      Ваш коментар:(Необов'язково)
      Ваша скарга буде надіслана ріелтору, що розмістив об'єкт, а також адміністрації сайту АФНУ.
      Ваше ім'я:
      (Обов'язково)
      Ваш e-mail для відповіді:
      (Обов'язково)

      Вам также могут подойти

      Київське Шосе, 1 (г. Полтава, Октябрьский район) - Здається торгівельний майданчик, 35000 грн. - АФНУ

      Оновлено: 29 грудня 2025

      Розміщено: 4 листопада 2025

      Здається торгівельний майданчик

      площа 100, поверх 1/1

      г. Полтава, Київське Шосе, 1

      35000 грн. без комісії

      Остапченко Александр Степанович

      соучредитель (Агентство недвижимости "Альянс риэлти" Полтава)

      Оренда окремої офісної будівлі з ділянкою 35 соток
      м. Полтава, вул. Київське Шосе, 1-Б (траса Київ–Харків)
      Здається в оренду окремостояча офісна будівля 100 м² + закрита ділянка 35 соток, огороджена…

      Детальніше

      Київське Шосе, 1 (г. Полтава, Октябрьский район) - Здається торгівельний майданчик, 35000 грн. - АФНУ

      Оновлено: 29 грудня 2025

      Розміщено: 4 листопада 2025

      Здається торгівельний майданчик

      площа 100, поверх 1/1

      г. Полтава, Київське Шосе, 1

      35000 грн. без комісії

      Остапченко Александр Степанович

      соучредитель (Агентство недвижимости "Альянс риэлти" Полтава)

      Оренда окремої офісної будівлі з ділянкою 35 соток
      м. Полтава, вул. Київське Шосе, 1-Б (траса Київ–Харків)
      Здається в оренду окремостояча офісна будівля 100 м² + закрита ділянка 35 соток, огороджена…

      Детальніше

      Коментарі