Вхід на сайт

Ел. пошта:
Пароль:

Реєстрація на сайті

Призвіще: Область:
Ім'я: Населений пункт:
    По батькові: Номер телефону:
    Ел. пошта: Компанія:
      Пароль: Посада:
      Повторіть пароль: Рік початку роботи:
      Фото:
      З правилами розміщення об'єктів погоджуюсь

      Забули пароль?

      Вкажіть ел. пошту — ми надішлемо Вам новий пароль для входу
      Ел. пошта:

      Проблема на сайті

      Закрити
      Ваш e-mail:
      (необов'язково)
      Розкажіть нам, що сталось


      без комісії Вишнева, 17 — Продається офіс в новобудові

      (с. Крюковщина, Киево-Святошинский район)

      25000 $

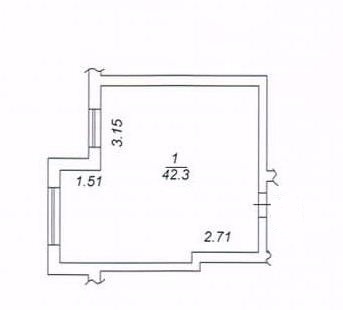
      Загальна площа: 42 кв.м

      Кімнат: 1

      К-ть поверхів: 5

      Без комісії
      Продаж нежитлового приміщення в с.Крюковщина, вул.Вишнева, 17, Київська обл.
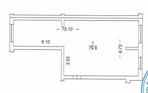
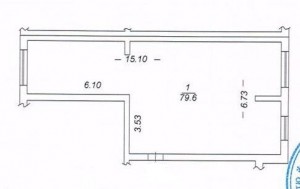
      Площі для продажу:
      42,3 кв.м. - 25000у.е. цоколь, повноцінні вікна
      79.6 кв.м. - 44000у.е. цоколь, повноцінні вікна
      99кв.м. - 46000у.е. цоколь, повноцінні вікна
      66,6кв.м. - 36000у.е. підвальне приміщення з вікнами
      Всі приміщення без оздоблення, з електрикою, сухі.
      Знаходяться в обжитому районі розвиненого мікрорайону.
      Є можливість облаштувати квартиру чи під орендний бізнес або під комерційну діяльність.
      Всі приміщення пропонуються без комісії для покупця.

      Надіслати скаргу

      Закрити
      Поскаржитися на об'єкт «Вишнева, 17 (с. Крюковщина, Киево-Святошинский район)»
      Ваш коментар:(Необов'язково)
      Ваша скарга буде надіслана ріелтору, що розмістив об'єкт, а також адміністрації сайту АФНУ.
      Ваше ім'я:
      (Обов'язково)
      Ваш e-mail для відповіді:
      (Обов'язково)

      Коментарі