Вхід на сайт

Ел. пошта:
Пароль:

Реєстрація на сайті

Призвіще: Область:
Ім'я: Населений пункт:
    По батькові: Номер телефону:
    Ел. пошта: Компанія:
      Пароль: Посада:
      Повторіть пароль: Рік початку роботи:
      Фото:
      З правилами розміщення об'єктів погоджуюсь

      Забули пароль?

      Вкажіть ел. пошту — ми надішлемо Вам новий пароль для входу
      Ел. пошта:

      Проблема на сайті

      Закрити
      Ваш e-mail:
      (необов'язково)
      Розкажіть нам, що сталось


      ул. Косиора — Здається торгівельний майданчик

      (г. Кривой Рог, Дзержинский район)

      7000 грн.

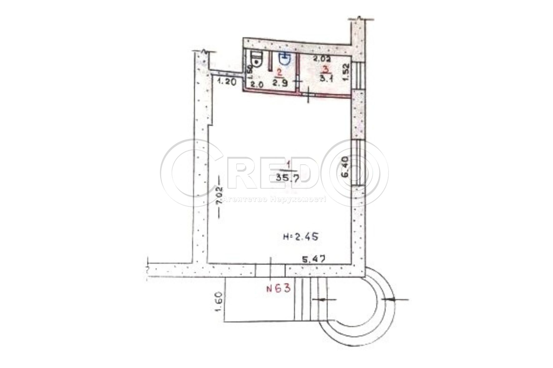
      Загальна площа: 41 кв.м

      Поверх: 1

      К-ть поверхів: 5

      Пропонуємо в оренду магазин на Соцмісті по вул. Соборності, поруч із ТК «Піраміда». Локація з активним пішохідним трафіком ідеально підходить для роздрібної торгівлі, сфери послуг, шоуруму та ін.

      Технічні характеристики:
      Загальна площа – 41,7 кв.м
      Торговельний зал – 35,7 кв.м
      Приміщення у робочому стані

      Комунікації:
      Центральне опалення
      Водопостачання
      Санвузол
      Електропостачання 8кВт

      Плюси локації:
      Поруч ТК «Піраміда», ринок
      Стабільний пішохідний трафік
      Розвинена інфраструктура району
      Зручне розташування для клієнтів

      Оренда 7 000грн + комун. платежі.
      Вільне з 1 березня.

      За будь-якими питаннями за цією або схожими пропозиціями звертайтесь за номером телефону 067 638 50 54

      З повагою, команда Credo!

      Надіслати скаргу

      Закрити
      Поскаржитися на об'єкт «ул. Косиора (г. Кривой Рог, Дзержинский район)»
      Ваш коментар:(Необов'язково)
      Ваша скарга буде надіслана ріелтору, що розмістив об'єкт, а також адміністрації сайту АФНУ.
      Ваше ім'я:
      (Обов'язково)
      Ваш e-mail для відповіді:
      (Обов'язково)

      Вам также могут подойти

      ул. Косиора (г. Кривой Рог, Дзержинский район) - Здається торгівельний майданчик, 10000 грн. - АФНУ

      Оновлено: 24 березня

      Розміщено: 3 жовтня 2025

      Здається торгівельний майданчик

      площа 20, поверх 1/1

      г. Кривой Рог, ул. Косиора

      10000 грн.

      Літвинова Ірина Вікторівна

      ення в робочому стані.

      Комунікації:
      - електроенергія - 7кВт,
      - водопостачання, стоки.

      Локація:
      - магазин розташований на території ринку
      - дуже прохідне місце.

      Додаткові витрати
      - Світло, вода - лічильники…

      Детальніше

      ул. Софьи Перовской (г. Кривой Рог, Саксаганский район) - Здається торгівельний майданчик, 8000 грн. - АФНУ

      Оновлено: 8 квітня

      Розміщено: 8 травня 2025

      Здається торгівельний майданчик

      площа 44, поверх 1/4

      г. Кривой Рог, ул. Софьи Перовской

      8000 грн.

      Літвинова Ірина Вікторівна

      Оренда приміщення по вул. С.Перовської, р-н пл. В. Великого

      Про об'єкт:
      - Загальна площа - 44кв.м.
      - Торг.пл.30.2кв.м.

      Комунікації:
      - Центральний водопровід.
      - Електрика.
      - Центральна каналізація.
      - Асфальтована дорога.…

      Детальніше

      ул. Космонавтов (г. Кривой Рог, Саксаганский район) - Здається торгівельний майданчик, 10000 грн. - АФНУ

      Оновлено: 4 березня

      Розміщено: 13 серпня 2025

      Здається торгівельний майданчик

      площа 40, поверх 1/1

      г. Кривой Рог, ул. Космонавтов

      10000 грн.

      Літвинова Ірина Вікторівна

      Оренда приміщення вул.Космонавтів, район "Вечірній", «Чебурашка».

      Технічні характеристики:
      - Окремо розташована будівля
      - Приміщення в доброму стані
      - Стеля амстронг
      - На підлозі кахель
      - Великі вітражні вікна
      - Встановлені…

      Детальніше

      Коментарі