Вхід на сайт

Ел. пошта:
Пароль:

Реєстрація на сайті

Призвіще: Область:
Ім'я: Населений пункт:
    По батькові: Номер телефону:
    Ел. пошта: Компанія:
      Пароль: Посада:
      Повторіть пароль: Рік початку роботи:
      Фото:
      З правилами розміщення об'єктів погоджуюсь

      Забули пароль?

      Вкажіть ел. пошту — ми надішлемо Вам новий пароль для входу
      Ел. пошта:

      Проблема на сайті

      Закрити
      Ваш e-mail:
      (необов'язково)
      Розкажіть нам, що сталось


      без комісії пр. Бажана Николая, 14 — Здається офіс

      (г. Киев, Дарницкий район)

      6000 грн.

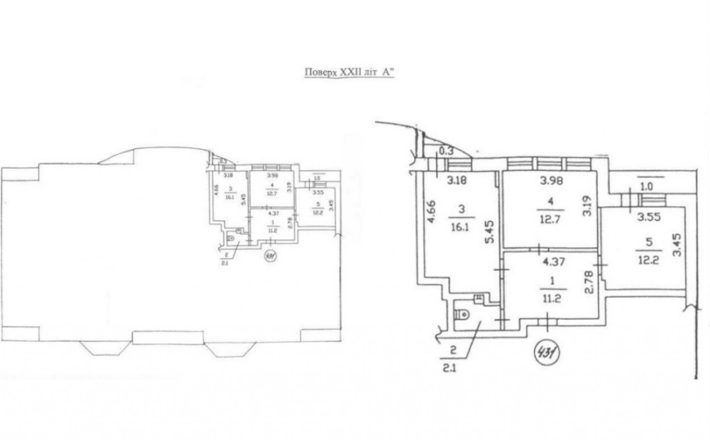
      Загальна площа: 55.6 кв.м

      Кімнат: 9

      Поверх: 22

      К-ть поверхів: 22

      Світло є завжди в під’їзді! Без комісії пропонується в оренду чудовий офіс , в Дарницькому районі на Осокорках. прт. М. Бажана 14, офіс знаходиться в житловому будинку на 22 поверсі, який складається з окремого блоку на 2 офіси:
      Здається офіс 55. 6 м2 - цей офіс складається з 3х кабінетів ( 16.1 м2, 12.7 м2, 12.2 м2 та зони очікування/рецепції 11.2 м2 ).Ліфт на поверх піднімається! В приміщенні виконаний якісний офісний ремонт, укомлектований всіма необхідними меблями. Офіс готовий до заселення нових орендарів. Окремо, якщо необхідно, є кладовка. В будинку ОСББ, не високі комунальні. Поряд закрита територія, місце для парковки. До найближчого метро Осокорки 10 хв. пішки.
      Ціна акційна та актуальна на період активних відключень світла. Також можливий продаж! Ціна 1500 у.е./м2, торг!

      Надіслати скаргу

      Закрити
      Поскаржитися на об'єкт «пр. Бажана Николая, 14 (г. Киев, Дарницкий район)»
      Ваш коментар:(Необов'язково)
      Ваша скарга буде надіслана ріелтору, що розмістив об'єкт, а також адміністрації сайту АФНУ.
      Ваше ім'я:
      (Обов'язково)
      Ваш e-mail для відповіді:
      (Обов'язково)

      Коментарі