Вхід на сайт

Ел. пошта:
Пароль:

Реєстрація на сайті

Призвіще: Область:
Ім'я: Населений пункт:
    По батькові: Номер телефону:
    Ел. пошта: Компанія:
      Пароль: Посада:
      Повторіть пароль: Рік початку роботи:
      Фото:
      З правилами розміщення об'єктів погоджуюсь

      Забули пароль?

      Вкажіть ел. пошту — ми надішлемо Вам новий пароль для входу
      Ел. пошта:

      Проблема на сайті

      Закрити
      Ваш e-mail:
      (необов'язково)
      Розкажіть нам, що сталось


      пр. Гагаріна — Продається квартира

      (г. Кривой Рог, Саксаганский район)

      23000 $

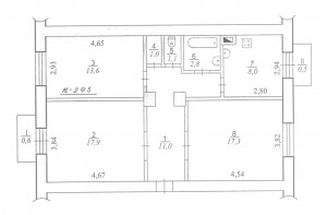
      Загальна площа: 73 кв.м

      Жила площа: 48 кв.м

      Площа кухні: 8 кв.м

      Кімнат: 3

      Поверх: 4

      К-ть поверхів: 4

      Продаж 3-кімнатної квартири, 97 Квартал, пр. Університетський (раніше пр. Гагаріна)

      Пропонуємо до Вашої уваги велику квартиру "сталінку" 4/4 поверхового будинку, розташованого в тихому дворі, з виходом на проспект.

      Про об'єкт:
      - загальна площа 73,8кв.м
      - житлова площа 48,8кв.м.

      Планування об'єкту:
      - кухня 8кв.м. з виходом на балкон;
      - велика зала 17,9кв.м. з виходом на балкон;
      - простора спальня 17,3кв.м.
      - спальня 13,6кв.м.
      - сан.вузол роздільний
      - кладова.

      Комунікації:
      - опалення центральне
      - водопостачання
      - газопостачання (колонка автомат)

      Особливості квартири:
      - тепла, затишна;
      - простора, світла;
      - легко переплановується;
      - гарні сусіди;
      - зверху техн.поверх.

      Локація:
      - центр міста
      - розвинена інфраструктура
      - зупинки міського транспорту
      - магазини супермаркети та розважальні заклади

      Ціна 23 000$

      За будь-якими питаннями за цією або схожими пропозиціями звертайтесь за номером телефону, де вам відповість наш ріелтор 097 203 67 77.

      З повагою, команда Credo!

      Надіслати скаргу

      Закрити
      Поскаржитися на об'єкт «пр. Гагаріна (г. Кривой Рог, Саксаганский район)»
      Ваш коментар:(Необов'язково)
      Ваша скарга буде надіслана ріелтору, що розмістив об'єкт, а також адміністрації сайту АФНУ.
      Ваше ім'я:
      (Обов'язково)
      Ваш e-mail для відповіді:
      (Обов'язково)

      Вам также могут подойти

      ул. Парковая (г. Кривой Рог, Саксаганский район) - Продається квартира, 18500 $ - АФНУ

      Оновлено: 30 вересня

      Розміщено: 7 серпня

      Продається квартира

      2 кімн., площа 44/32/7, поверх 2/2

      г. Кривой Рог, ул. Парковая

      18500 $

      Літвинова Ірина Вікторівна

      Продаж 2-х кімнатної квартири вул. Паркова «Площа В.Великого»

      Про об’єкт:
      - Поверх 2/2
      - Загальна площа 44.6кв.м
      - Житлова 32.0 кв.м.
      - Кухня 7.1 кв.м.
      - Замінені труби на м/пл.…

      Детальніше

      ул. Харитонова (г. Кривой Рог, Центрально-Городской район) - Продається квартира, 26000 $ - АФНУ

      Оновлено: 29 вересня

      Розміщено: 12 травня

      Продається квартира

      3 кімн., площа 64/42/7, поверх 4/5

      г. Кривой Рог, ул. Харитонова

      26000 $

      Літвинова Ірина Вікторівна

      Увага! Вигідні умови для продажу по сертифікату.
      Пропонуємо 3кімнатну квартиру ,"сталінка",
      Центрально-Міський район, по вулиці П.Калнишевського,7 (Харитонова).
      Пропозиція для тих хто шукає житло у центрі, не типового
      планування, поряд із…

      Детальніше

      ул. Адмирала Головко (г. Кривой Рог, Терновской район) - Продається квартира, 25000 $ - АФНУ

      Оновлено: 19 серпня

      Розміщено: 9 липня

      Продається квартира

      3 кімн., площа 64/38/7, поверх 2/9

      г. Кривой Рог, ул. Адмирала Головко

      25000 $

      Літвинова Ірина Вікторівна

      Пропонуємо до продажу зручну та красиву 3кімнатну квартиру в Тернівському районі, вул.Героїв Маріуполя, 27 (раніше А. Головко).
      Якісний ремонт і головне повна незалежність по опаленню -
      газовий двоконтурний котел!

      Про…

      Детальніше

      Коментарі