Вхід на сайт

Ел. пошта:
Пароль:

Реєстрація на сайті

Призвіще: Область:
Ім'я: Населений пункт:
    По батькові: Номер телефону:
    Ел. пошта: Компанія:
      Пароль: Посада:
      Повторіть пароль: Рік початку роботи:
      Фото:
      З правилами розміщення об'єктів погоджуюсь

      Забули пароль?

      Вкажіть ел. пошту — ми надішлемо Вам новий пароль для входу
      Ел. пошта:

      Проблема на сайті

      Закрити
      Ваш e-mail:
      (необов'язково)
      Розкажіть нам, що сталось


      без комісії Пр. Поштовий — Здається торгівельний майданчик

      (г. Кривой Рог, Центрально-Городской район)

      250 грн. за кв.м.

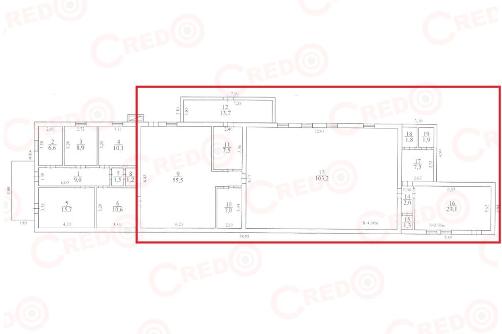
      Загальна площа: 224 кв.м

      Поверх: 1

      К-ть поверхів: 1

      Оренда приміщення, р-н Центрально Міський, пр. Поштовий

      Приміщення знахдиться в центрі головної вулиці міста, напроти Театру Т.Шевченка.
      Окремо розташована будівля підійде під виробництво, фітнес, дитячий центр, колл центр та інше.

      Технічні характеристики:
      - загальна площа 224.3кв.м.


      Планування об’єкту:
      Один торговий зал,
      центральний вхід з площі та загрузочний вхід зі сторони двору.

      Комунікації:
      - електроенергія 100кВт; 380V.
      - газопостачання;
      - водопостачання та стоки;
      - сан.вузол.

      Логістична розв’язка: проспект Поштовий – це культурний та діловий центр міста, популярне місце для відпочинку городян.



      Оренда 250грн/кв.м. + коммун. платежі.


      За будь-якими питаннями за цією або схожими пропозиціями звертайтесь за номером телефону, де вам відповість наш ріелтор Наталія - 0676961651
      Підписуйтесь на наш Instagram та слідкуйте за оновленнями - @ancredokr
      З повагою, команда Credo!

      Надіслати скаргу

      Закрити
      Поскаржитися на об'єкт «Пр. Поштовий (г. Кривой Рог, Центрально-Городской район)»
      Ваш коментар:(Необов'язково)
      Ваша скарга буде надіслана ріелтору, що розмістив об'єкт, а також адміністрації сайту АФНУ.
      Ваше ім'я:
      (Обов'язково)
      Ваш e-mail для відповіді:
      (Обов'язково)

      Вам также могут подойти

      ул. Янова (г. Кривой Рог, Центрально-Городской район) - Здається торгівельний майданчик, 350 грн. за кв.м. - АФНУ

      Оновлено: 7 листопада

      Розміщено: 6 травня

      Здається торгівельний майданчик

      площа 207, поверх 1/4

      г. Кривой Рог, ул. Янова

      350 грн. за кв.м.

      Літвинова Ірина Вікторівна

      Оренда магазину в історично-діловому центрі міста
      - Центрально Міський район
      - Вул. Комерційна, 3

      Про об’єкт:
      - 1 поверх 4 -х поверхового житлового будинку
      - Окремий вхід
      - Перед приміщенням…

      Детальніше

      пр. Центральний (г. Кривой Рог, Центрально-Городской район) - Здається торгівельний майданчик, 220 грн. за кв.м. - АФНУ

      Оновлено: 27 жовтня

      Розміщено: 19 травня

      Здається торгівельний майданчик

      площа 110, поверх 1/5

      г. Кривой Рог, пр. Центральний

      220 грн. за кв.м.

      Літвинова Ірина Вікторівна

      Оренда приміщення, проспект Центральний, Центрально Міський район

      Пропонуємо приміщення у відмінному стані, після свіжого та стильного ремонту.

      Технічні характеристики:
      - загальна площа 110,8кв.м.
      - торгова площа - 84,1кв.м.
      - парковка…

      Детальніше

      пр. Університетський (г. Кривой Рог, Саксаганский район) - Здається торгівельний майданчик, 350 грн. за кв.м. - АФНУ

      Оновлено: 9 жовтня

      Розміщено: 29 березня 2024

      Здається торгівельний майданчик

      площа 260, поверх 1/9

      г. Кривой Рог, пр. Університетський

      350 грн. за кв.м.

      Літвинова Ірина Вікторівна

      Оренда торгового приміщення пр. Університетський
      - Довгинцівський район

      Технічні характеристики:
      - перший поверх 9-ти поверхового житлового будинку
      - "червона лінія"
      - в приміщенні ведуться ремонтні роботи

      Планування об’єкту:
      - загальна…

      Детальніше

      Коментарі