Вхід на сайт

Ел. пошта:
Пароль:

Реєстрація на сайті

Призвіще: Область:
Ім'я: Населений пункт:
    По батькові: Номер телефону:
    Ел. пошта: Компанія:
      Пароль: Посада:
      Повторіть пароль: Рік початку роботи:
      Фото:
      З правилами розміщення об'єктів погоджуюсь

      Забули пароль?

      Вкажіть ел. пошту — ми надішлемо Вам новий пароль для входу
      Ел. пошта:

      Проблема на сайті

      Закрити
      Ваш e-mail:
      (необов'язково)
      Розкажіть нам, що сталось


      пр. Університетський — Здається торгівельний майданчик

      (г. Кривой Рог, Саксаганский район)

      350 грн. за кв.м.

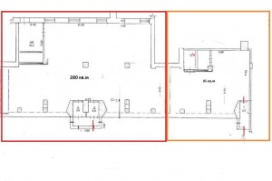
      Загальна площа: 260 кв.м

      Поверх: 1

      К-ть поверхів: 9

      Оренда торгового приміщення пр. Університетський
      - Довгинцівський район

      Технічні характеристики:
      - перший поверх 9-ти поверхового житлового будинку
      - "червона лінія"
      - в приміщенні ведуться ремонтні роботи

      Планування об’єкту:
      - загальна площа - 260 кв.м.
      - окремий центральний вхід та завантажувальний
      - вільне планування
      - вітражний фасад

      Комунікації:
      - опалення відключено (транзит)
      - центральне електропостачання 25 кВт; 380 Вт
      - центральне водопосточання, каналізація
      - пожежна, охорона сигналізації

      Логістична розв’язка:
      - магазин розташований в густонаселеному районі
      - поруч зупинки громадського транспорту
      - автовокзал
      - супермаркет "АТБ", магазини "Єва", "Файно", аптеки "Подоржник", "АНЦ" та безліч інших магазинів
      - великий автомобільний та пішохідний трафік

      Оренда - 350грн/кв.м.
      За будь-якими питаннями за цією або схожими пропозиціями звертайтесь за номером телефону, де вам відповість наш ріелтор Наталія – 067 696 16 51

      Підписуйтесь на наш Instagram та слідкуйте за оновленнями - @ancredokr

      З повагою, команда Credo!

      Надіслати скаргу

      Закрити
      Поскаржитися на об'єкт «пр. Університетський (г. Кривой Рог, Саксаганский район)»
      Ваш коментар:(Необов'язково)
      Ваша скарга буде надіслана ріелтору, що розмістив об'єкт, а також адміністрації сайту АФНУ.
      Ваше ім'я:
      (Обов'язково)
      Ваш e-mail для відповіді:
      (Обов'язково)

      Вам также могут подойти

      пр. Гагаріна (г. Кривой Рог, Саксаганский район) - Здається торгівельний майданчик, 400 грн. за кв.м. - АФНУ

      Оновлено: 24 грудня 2025

      Розміщено: 14 травня 2025

      Здається торгівельний майданчик

      площа 103, поверх 1/4

      г. Кривой Рог, пр. Гагаріна

      400 грн. за кв.м.

      Літвинова Ірина Вікторівна

      Пр. Університетський, 3 (Гагаріна)
      Саксаганський район
      - загальна площа-103 кв.м
      - торгівельний зал-73,4 кв.м
      - висота стелі - Н= 3,20 м

      Комунікації:
      - центральне електропостачання 12 кВт; 380 Вт
      -…

      Детальніше

      пр. Університетський (г. Кривой Рог, Саксаганский район) - Здається торгівельний майданчик, 350 грн. за кв.м. - АФНУ

      Оновлено: 5 грудня 2025

      Розміщено: 16 травня 2025

      Здається торгівельний майданчик

      площа 308, поверх 1/4

      г. Кривой Рог, пр. Університетський

      350 грн. за кв.м.

      Літвинова Ірина Вікторівна

      Оренда магазину Саксаганський район
      пр. Університетський (пр. Гагаріна), 96 квартал
      "червона лінія"

      Технічні характеристики:
      - перший поверх 4-х поверхового житлового будинку
      - гарний фасад
      - великі вітражні вікна
      - ролети…

      Детальніше

      Володимира Великого (г. Кривой Рог, Саксаганский район) - Здається торгівельний майданчик, 250 грн. за кв.м. - АФНУ

      Оновлено: 11 грудня 2025

      Розміщено: 16 травня 2025

      Здається торгівельний майданчик

      площа 562, поверх 1/9

      г. Кривой Рог, Володимира Великого

      250 грн. за кв.м.

      Літвинова Ірина Вікторівна

      Оренда торгового приміщення вул.Володимира Великого
      Саксаганський район

      Технічні характеристики:
      - перший поверх 9-ти поверхового житлового будинку
      - "червона лінія"
      - в приміщенні зроблено капітальний ремонт

      Планування об’єкту:
      - загальна площа…

      Детальніше

      Коментарі